| Sign In | Join Free | My components-electronic.com |
|
Brand Name : YT
Model Number : LDC
Certification : CE GOST ISO,TU
Place of Origin : CHINA
MOQ : 1 set
Price : USD3000
Payment Terms : L/C, T/T
Supply Ability : 1000set per year
Delivery Time : 30 work days
Packaging Details : Electrical and other parts packed by high quality plywood crate,Beams packed by plastic woven cloth.
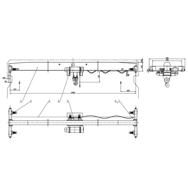
Name : LDC Low Headroom Type Single Girder Overhead Crane
Keywords : Single Girder Overhead Crane
Feature : Bridge Crane
Core Components : Engine, Gearbox, Motor
Span : 3-16m
Weight (KG) : 8000kg
Lifting speed : 5-15M/MIN
Max. Lifting Load : 6.5t
Max. Lifting Height : 30m
Painting color : According to your demand
Warranty : 1 years
Condition : New
LDC Low Headroom Type Single Girder Overhead Crane
LDC Single Girder Overhead Crane Description
LDC electric single girder overhead crane is composed of box-shaped main girder weld by steel plates, end girder, electric hoist and travelling mechanism. The lower flange of the girder is the travelling orbit of electric hoist to accomplish goods handling.
The electric hoist with low headroom structure can effectively increase the lifting height, so that it is applicable to the places where the workshop is low and the requirement of lifting height is high.
LDC Single Girder Overhead Crane Parameter

LDC Single Girder Overhead Crane Features
LDC Single Girder Overhead Crane Details


|
|
Automatic Single Girder Overhead Crane 5 Ton With Electric Hoist Images |